狭山市鵜ノ木4621番 新築戸建|現地販売会情報|センチュリー21安藤建設
狭山市鵜ノ木4621番 新築戸建
| 日時 | 毎週土・日・祝日 ■9:00~18:00 |
|---|---|
| 所在地 | 狭山市鵜ノ木4-41 |
| 価格 | 3,790万円(税込) |
|---|
〇敷地約49坪、開放的な南庭付き!駐車並列3台(車種制限有)
〇前面幅員が広く駐車もしやすい開放的な北東角地
〇スーパー・コンビニ・バス停など徒歩7分圏内
〇小中学校徒歩約3分!お子様を急かさずに済み、毎日の通学負担も少なく安心◎
〇かさばりやすい雨具などもしっかり片付くSIC完備!
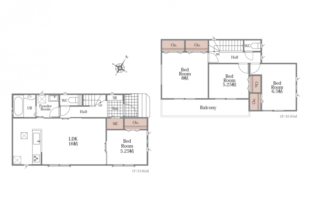
| 種別 | 新築戸建 | 間取り | 4LDK |
|---|---|---|---|
| 交通 | 西武新宿線「狭山市」駅徒歩約21分・西武池袋線「稲荷山公園」駅徒歩約15分 | 価格 | 3,790万円(税込) |
| 所在地 | 狭山市鵜ノ木4-41 | 面積 | 164.99㎡(実測) |
| 地目 | 宅地 | 土地権利 | 所有権 |
| 接道状況 | 東側約6.2m・北側約6.2m公道 | 延床面積 | 99.77㎡(実測) |
| 築年月 | 令和8年5月完成予定 | 構造 | 木造2階建 |
| 建蔽率 | 60% | 容積率 | 200% |
| 建築確認番号 | 第HPA-25-13310-1号 | ||
| お問い合わせ | センチュリー21安藤建設 フリーダイヤル【 0120-05-3811 】 | ||
狭山市鵜ノ木4-41
関連カテゴリ
月々返済額から検索
※上記ローン返済額別物件特集(月々の支払)につきましてはあくまで目安となり、銀行審査で個人情報等により異なるケースもございます。






















