| 価格 | 2,990万円 ![]() |
||||
|---|---|---|---|---|---|
| 所在地 | 埼玉県狭山市中央2丁目 42-6
この地域周辺の物件を見る |
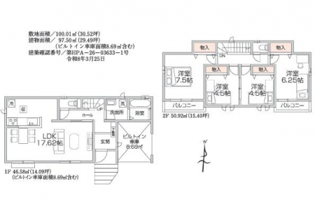
土地面積 | 100.01m² (30.25坪) | 建物面積 | 97.5u |
| 築年月 | 2026年7月築 | 間取り | 4LDK (LDK17.62/洋室7.5/洋室6.25/洋室4.5/洋室4.5) | ||
| 交通 |
西武新宿線 狭山市 徒歩22分/井戸窪 バス5分 停歩9分
西武新宿線 新狭山 徒歩29分 西武池袋線 稲荷山公園 徒歩51分 |
||||
電話をかける(携帯・PHS可)
0120-05-3811
「ホームページを見た」とお伝え下さい。
お問い合わせ番号をお伝えください
RHS-165801-12354
| 特徴 |
|
|---|---|
| セールスコメント | 愛車を守るビルトインガレージ! スーパー、ホームセンターなどが揃うベスタ狭山徒歩10分圏内! ●エコジョーズ●浄水器 ●TVモニター付きインターホン ●南向きバルコニー2か所 ●コンビニ徒歩7分 ●スーパー徒歩8分 |
| 採光面 | 南 | 構造/階数 | 木造/地上2階建 |
|---|---|---|---|
| 建ぺい率 | 60(%) | 容積率 | 200(%) |
| 駐車場 | 有 | 現況/引渡し | 建築中/2026年8月下旬 |
| 土地権利 | 所有権 | 私道負担面積 | - |
| 接道状況 | 接道: 南 私道 道路幅: 6m | 用途地域 |
第一種中高層住居専用地域
|
| セットバック | - | 法令上の制限 | - |
| 地目 | 宅地 | 地勢 | |
| 建築確認番号 | 第HPA-26-03633-1号 | 都市計画 | 市街化区域 |
| 小学校区 | 富士見小学校 | 中学校区 | 狭山台中学校 |
| 取引態様 | 仲介 | ||
| 情報更新日 | 2026年04月15日 | 次回更新日 | 2026年04月29日 |
| 小学校区 | () |
中学校区 | () |
|---|
電話をかける(携帯・PHS可)
0120-05-3811
「ホームページを見た」とお伝え下さい。
お問い合わせ番号をお伝えください
RHS-165801-12354
| 価格 | 万円 | ||
|---|---|---|---|
| 年利率 | % |
||
| ボーナス払い | 返済年数 | ||
| 頭金 | 直接入力する | 万円 | |

毎月のご返済額 |
ボーナス(×年2回) |
物件価格2,990万円 |
電話をかける(携帯・PHS可)
0120-05-3811
「ホームページを見た」とお伝え下さい。
お問い合わせ番号をお伝えください
RHS-165801-12354
※上記ローン返済額別物件特集(月々の支払)につきましてはあくまで目安となり、銀行審査で個人情報等により異なるケースもございます。
●全室南向きで明るくあたたか
●前面道路行き止まりのため車通りが少なく安心
《センチュリー21安藤建設なら新築設備保証10年無料》