| 価格 | 1,429万円値下がり ![]() |
||||
|---|---|---|---|---|---|
| 所在地 | 埼玉県狭山市鵜ノ木 25-18
この地域周辺の物件を見る |
専有面積 | 70.94u | ||
| 交通 |
西武池袋線 入間市 徒歩13分
西武新宿線 狭山市 入間黒須団地 バス8分 停歩6分 西武池袋線 稲荷山公園 徒歩14分 |
管理費等 | 7,810円 | 修繕積立金 | 13,030円 | 所在階/階数 | 1階/地上8階建 | 築年月 | 1980年11月築 | バルコニー面積 | 8.82m² |
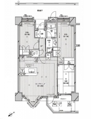
| 間取り | 3LDK (LDK11/洋室6/洋室5.3/洋室4.5) | ||||
電話をかける(携帯・PHS可)
0120-05-3811
「ホームページを見た」とお伝え下さい。
お問い合わせ番号をお伝えください
RHS-165801-12285
| 特徴 |
|
|---|---|
| セールスコメント | ●1階部分●広めの玄関ホール ●洗面室に収納に使えるスペース有 ●浴室乾燥機●浄水器 |
| 採光面 | 南西 | 取引態様 | 仲介 |
|---|---|---|---|
| 現況 | 空室 | 引渡し | 即時 |
| 総戸数 | 166戸 | 構造 | SRC造 |
| テラス面積 | - | 専用庭面積 | - |
| 駐車場 | 有:7,600円/月 | 駐輪場 | 無 |
| 建物権利 | - | 土地権利 | 所有権 |
| 用途地域 | - | 管理態様 | 管理形態:委託(通勤) 管理組合:なし 管理会社:日本ハウズイング(株) |
| 小学校区 | 入間川小学校 | 中学校区 | 入間川中学校 |
| 情報更新日 | 2026年04月28日 | 次回更新日 | 2026年05月12日 |
| 小学校区 | () |
中学校区 | () |
|---|
電話をかける(携帯・PHS可)
0120-05-3811
「ホームページを見た」とお伝え下さい。
お問い合わせ番号をお伝えください
RHS-165801-12285
| 価格 | 万円 | ||
|---|---|---|---|
| 年利率 | % |
||
| ボーナス払い | 返済年数 | ||
| 頭金 | 直接入力する | 万円 | |

毎月のご返済額 |
ボーナス(×年2回) |
物件価格1,429万円 |
電話でお問い合わせ
安藤建設
|
電話をかける 0120-05-3811 ※「ホームページを見た」とお伝えください。 |
お問い合わせ番号をお伝えください RHS-165801-12285 |
|---|
※上記ローン返済額別物件特集(月々の支払)につきましてはあくまで目安となり、銀行審査で個人情報等により異なるケースもございます。
●2026年2月フルリフォーム完了
●外からの視線が気になりにくい1階
《即入居可能!是非現地ご内覧ください》